Toruń, Ignacego Łyskowskiego
399 000,00 PLN
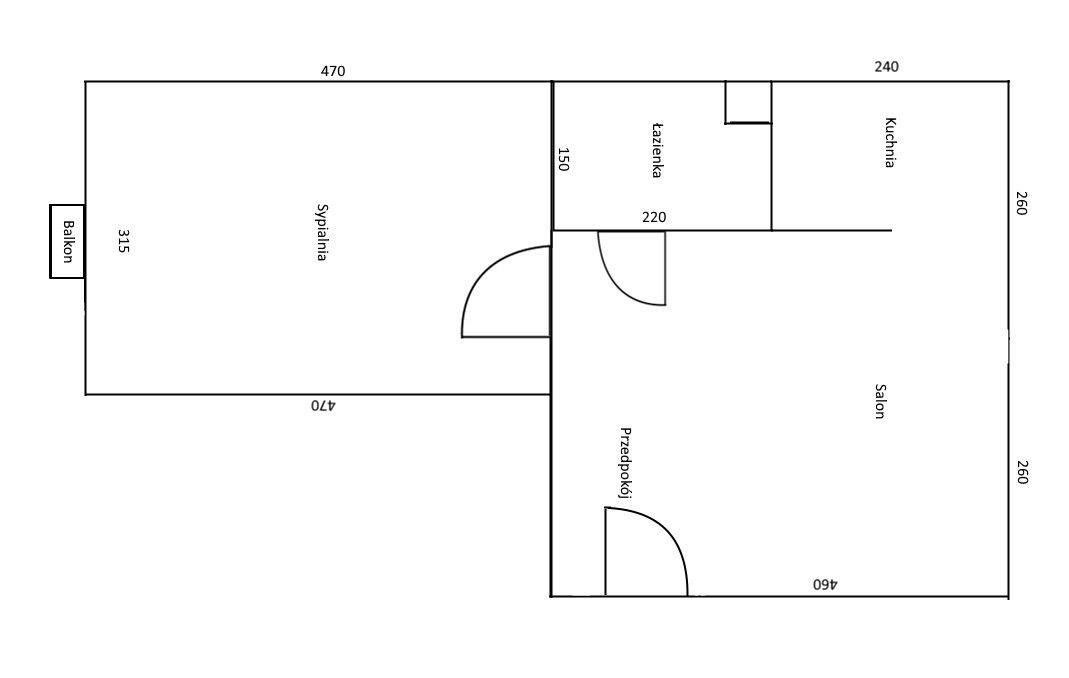
Mieszkanie na sprzedaż , 38,50 m2
10 363,64 PLN /m2
Powierzchnia
38,50 m2
Liczba pokoi
2
Rok budowy
1980

Dane nieruchomości:

Numer oferty: 333428
Powierzchnia: 38,50 m2
Liczba pokoi: 2
Piętro/Pięter 7 z 11
Rok budowy: 1980
Balkon : 1
Cena za m2: 10 363,64 PLN
Cena: 399 000,00 PLN

Opis nieruchomości:

Nowoczesne 2 pokoje z pięknym widokiem | Rubinkowo 

Marzysz o mieszkaniu gotowym do wprowadzenia, z widokiem, który codziennie będzie Ci poprawiać nastrój? Ta oferta spełni Twoje oczekiwania!

Na sprzedaż 2-pokojowe mieszkanie o powierzchni 38,5 m², położone na 7. piętrze wieżowca na Rubinkowie. Dzięki ekspozycji okien na północ i południe wnętrza są jasne, a z okien rozciąga się przyjemny, otwarty widok — bez zaglądających sąsiadów. Dopełnieniem przestrzeni jest balkon, na którym z przyjemnością wypijesz poranną kawę.

Dlaczego warto?

✅ Schowek na półpiętrze — dodatkowa przestrzeń do przechowywania

✅ 7. piętro — więcej prywatności, lepszy widok i cisza ponad miejskim zgiełkiem

✅ Balkon — Twoja własna strefa relaksu

✅ Piękne, nowoczesne wykończenie — zdjęcia pokazują standard, jaki możesz otrzymać, na przykładzie wcześniejszych realizacji właściciela

Szczegóły:

Powierzchnia: 38,5 m²

2 pokoje + balkon

Ekspozycja okien: północ-południe

Termin odbioru: już za 3-5 miesięcy

Cena orientacyjna: 399 000 zł (ostateczna cena zależna od wybranej aranżacji i standardu wykończenia)

Jeżeli szukasz mieszkania, które możesz dostosować do swoich potrzeb, a jednocześnie chcesz szybko się wprowadzić — ta oferta jest dla Ciebie!
Nie czekaj, takie okazje na Rubinkowie pojawiają się rzadko!

Zadzwoń i umów się na prezentację — pomogę Ci przejść przez cały proces zakupu!

Zapraszamy do kontaktu w celu umówienia się na oglądanie mieszkania oraz uzyskania dodatkowych informacji.
Biuro Nieruchomości m-House
tel: 575 874 184

Przeprowadzę Państwa przez cały proces zakupu oraz zagwarantuję bezpieczeństwo transakcji.

USŁUGA POŚREDNICTWA JEST USŁUGĄ PŁATNĄ W SYTUACJI ZAKUPU NIERUCHOMOŚCI.
PREZENTACJE WSZYSTKICH NIERUCHOMOŚCI SĄ BEZPŁATNE.
PRZED PREZENTACJĄ, ZA OKAZANIEM DOKUMENTU TOŻSAMOŚCI, NALEŻY PODPISAĆ UMOWĘ POŚREDNICTWA.

Niniejszy opis ma charakter informacyjny i nie stanowi oferty w rozumieniu Kodeksu Cywilnego.
Wszystkie zdjęcia i filmy są własnością biura nieruchomości. Zabrania się kopiowania i wykorzystywania zdjęć oraz filmów w jakikolwiek sposób.

Skontaktuj się z agentem :
Marika m-House

Telefon : 575874184

biuro@nieruchomosci-mhouse.pl


Lokalizacja: